Descrizione

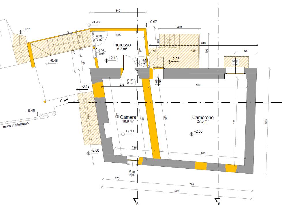
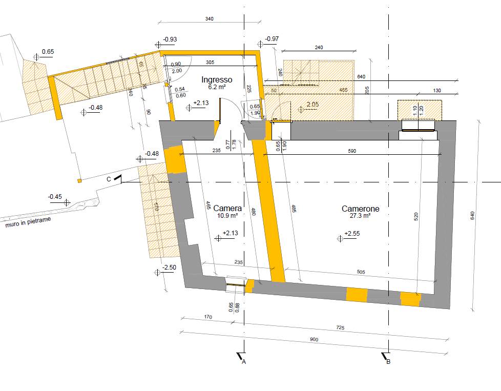
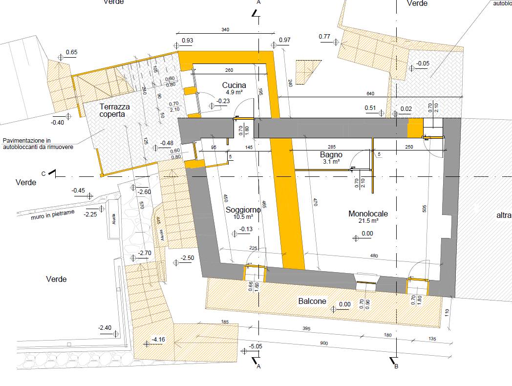
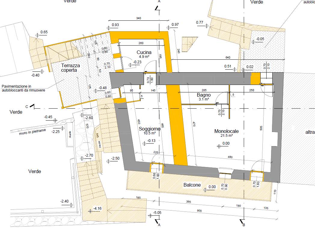
SAINT-VINCENT, frazione Capard, proponiamo in vendita una casa disposta su quattro piani. Al piano terra ci sono le cantine, il primo, secondo e terzo sono adibiti ad abitazione più un ampio sottotetto.

Sono necessari dei lavori di sistemazione e c'é lo spazio per ricavare anche più unità immobiliari usufruendo della possibilità di ampliamento con il piano casa.

dietro l'immobile si trova un ampio giardino di oltre 700mq.

La posizione di questa casa è unica: vicina al centro che si raggiunge a piedi in 10 minuti, rialzata rispetto al paese permettendo così la vista su tutta la valle, soleggiata e tranquilla.



Caratteristiche principali

Stato Immobile
Da Ristrutturare
Grado
Medio
Posizione
Collina
Panorama
Vista Aperta
Orientamento
Sud
Lati Liberi
3
Giardino
Privato
Arredi
Non Arredato
Infissi
Legno

Mappa

Capard , Saint Vincent (AO)

Richiedi informazioni

Invia
Cookie preference