Descrizione

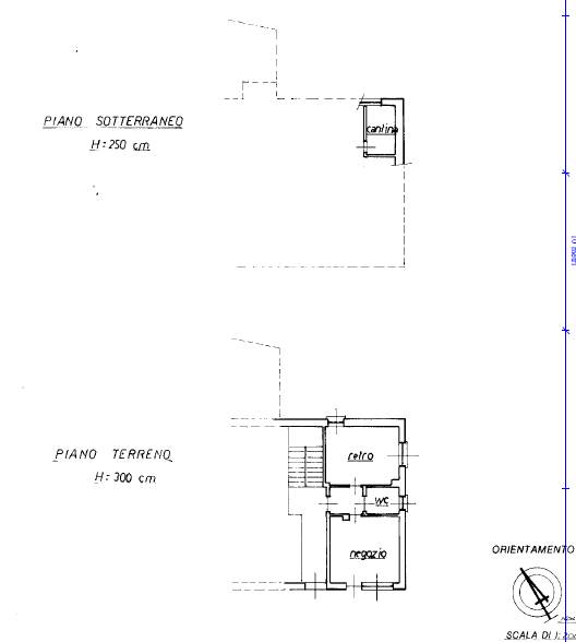
Proponiamo in vendita locale ristrutturato al piano terra, attualmente adibito a salone di parrucchiera, sul lato fronte strada e zona abitabile sul retro, la soluzione si presta a un cambio di destinazione d'uso e può diventare un ampio bilocale composto da zona giorno con soppalco, camera, disimpegno con bagno finestrato con box doccia
basse spese di gestione e posto auto privato.
la posizione dell'Immobile è comoda ai servizi, a soli 5 minuti dal centro di Aosta e ben collegata dai mezzi


Caratteristiche principali

Stato Immobile
Ristrutturato
Grado
Medio
Posizione
Periferia
Panorama
Vista Aperta
Orientamento
Nord Est Sud
Lati Liberi
3
Arredi
Arredato
Riscaldamento
Autonomo
Tipo Riscaldam.
Caldaia
Tipo Impianto
Radiatori
Fonte Energetica
GPL
Acqua Calda
Autonoma
Accessori: Doppi Vetri, Passaggio Automobilistico, Stufa a Pellet

Mappa

villefranche , Quart (AO)

Richiedi informazioni

Invia
Cookie preference